Cho thuê nhà xưởng 17.724 m2 KCN Hố Nai 3, Đồng Nai

100 tỷ
13500m²
7.41 triệu /m²
333.33 tr /mn
Mã tin: 1615379 Cập nhật 3 ngày trước

Thông tin BĐS

Loại BĐS:
Chiều ngang:
300m
Cho thuê nhà xưởng 17.724 m2 KCN Hố Nai 3, Đồng Nai
📍 Vị trí: Nằm trong Khu công nghiệp Hố Nai 3, huyện Trảng Bom, tỉnh Đồng Nai.
• Giao thông thuận tiện, kết nối nhanh đến QL1A, cao tốc Long Thành – Dầu Giây, sân bay Long Thành và trung tâm TP.HCM.
📐 Thông tin chi tiết:
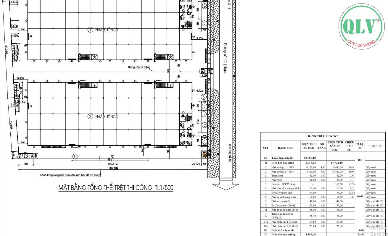
• Tổng diện tích đất: 13.506 m²
• Tổng diện tích xây dựng: 17.724 m²
• Gồm 2 khối xưởng chính và văn phòng làm việc:
🏢 Xưởng 1:
• Diện tích: 8.480 m² (1 trệt, 1 lầu – kích thước 40m x 104m)
• Kèm văn phòng 160 m² được bố trí tiện lợi, có khu làm việc, phòng họp, khu vệ sinh riêng.
🏢 Xưởng 2:
• Diện tích: 8.480 m² (1 trệt, 1 lầu – kích thước 40m x 104m)
• Kèm văn phòng 160 m² tương tự.
📏 Thông số kỹ thuật:
• Chiều cao tầng 1: 8 m
• Chiều cao diềm mái: 15,5 m
• Chiều cao đỉnh mái: 19,4 m
• Nền bê tông chịu tải trọng lớn, phù hợp cho sản xuất công nghiệp nặng, nhẹ hoặc kho logistics.
• Có hệ thống PCCC tự động, điện 3 pha, cấp thoát nước, chiếu sáng đầy đủ, đường xe container ra vào 24/24.
• Có khu vực bãi xe, nhà bảo vệ, nhà ăn và công trình phụ trợ khác.
________________________________________
💰 Giá thuê: 4,5 USD/m²/tháng
(Hợp đồng thuê dài hạn, thương lượng trực tiếp với chủ đầu tư.)
Hotline: 0931769444 / http://nhaxuongmiennam.vn

Mọi thông tin, nội dung liên quan tới tin rao này là do người đăng tin đăng tải và chịu trách nhiệm. Guland.vn luôn cố gắng để các thông tin được hữu ích nhất cho quý vị tuy nhiên Guland.vn không đảm bảo và không chịu trách nhiệm về bất kỳ thông tin, nội dung nào liên quan tới tin rao này. Trường hợp phát hiện nội dung tin đăng không chính xác, Quý vị hãy thông báo và cung cấp thông tin cho Ban quản trị Guland.vn theo Hotline Chăm sóc khách hàng để được hỗ trợ nhanh và kịp thời nhất.
Tin đăng tương tự