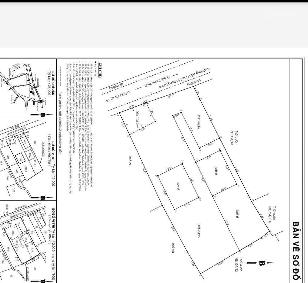
Do nhu cầu không sử dụng nên gia chủ cần bán gấp lô đất mặt tiền Bùi Thanh Khiết thị trấn Tân Túc huyện Bình Chánh.
Tổng diện tích 2732m² ngang 34m dài 80m nở hậu 36m.
Có 977m² thổ cư.
Quy hoạch dân cư hiện hữu.
Nằm ngay trung tâm huyện bình chánh cách Ql 1A 200m.
Khu vực thuận tiện kinh doanh kho tàng bến bãi làm gara showroom xe hơi vv. Vv.
Giá bán mong muốn 70 tỷ thương lượng chính chủ.
LH .
Xem thêm
Mọi thông tin, nội dung liên quan tới tin rao này là do người đăng tin đăng tải
và chịu trách nhiệm. Guland.vn luôn cố gắng để các thông tin được hữu ích nhất
cho quý vị tuy nhiên Guland.vn không đảm bảo và không chịu trách nhiệm về bất kỳ
thông tin, nội dung nào liên quan tới tin rao này. Trường hợp phát hiện nội dung
tin đăng không chính xác, Quý vị hãy thông báo và cung cấp thông tin cho Ban
quản trị Guland.vn theo Hotline Chăm sóc khách hàng để được hỗ trợ nhanh và kịp
thời nhất.
Tính năng hoặc nội dung này chỉ dành cho thành viên của GuLand.vn
Bạn vui lòng Đăng ký hoặc Đăng nhập để xem và sử dụng
tính
năng dành riêng cho thành viên, hoặc vui lòng liên hệ chuyên viên tư vấn để được trợ giúp
và
hướng dẫn: