Bán đất 102m² ngang 5.6m giá 2,96 tỷ Phường Tây Nha Trang

VIP
2.96 tỷ
102m²
29.02 triệu /m²
528.57 tr /mn
Mã tin: 1527374 Cập nhật 2 giờ trước

Thông tin BĐS

Loại BĐS:
Chiều ngang:
5.6m
Hướng cửa chính:
Nam
Thế đất hướng Nam thiên về Đông Nam.

Mặt tiền đường Quy Đông (~102m² ngang 5.6m. Hai mặt tiền đường bê tông lớn.
- Hướng Nam đường 5.5m (thực tế 5,8m).
- Hướng Bắc: đường 4m.

2 mặt tiền đường trước sau rất thuận lợi cho ai có ô tô vào gara phía sau (Bắc), cổng chính phía trước (Nam), phong thuỷ tuyệt vời, đặc biệt với những người thuộc Đông tứ mệnh. Khu vự chỉ toàn nhà cao tầng khang trang, đường rộng, thế Sơn Thủy cục rất hài hòa… 💚❤️🩷

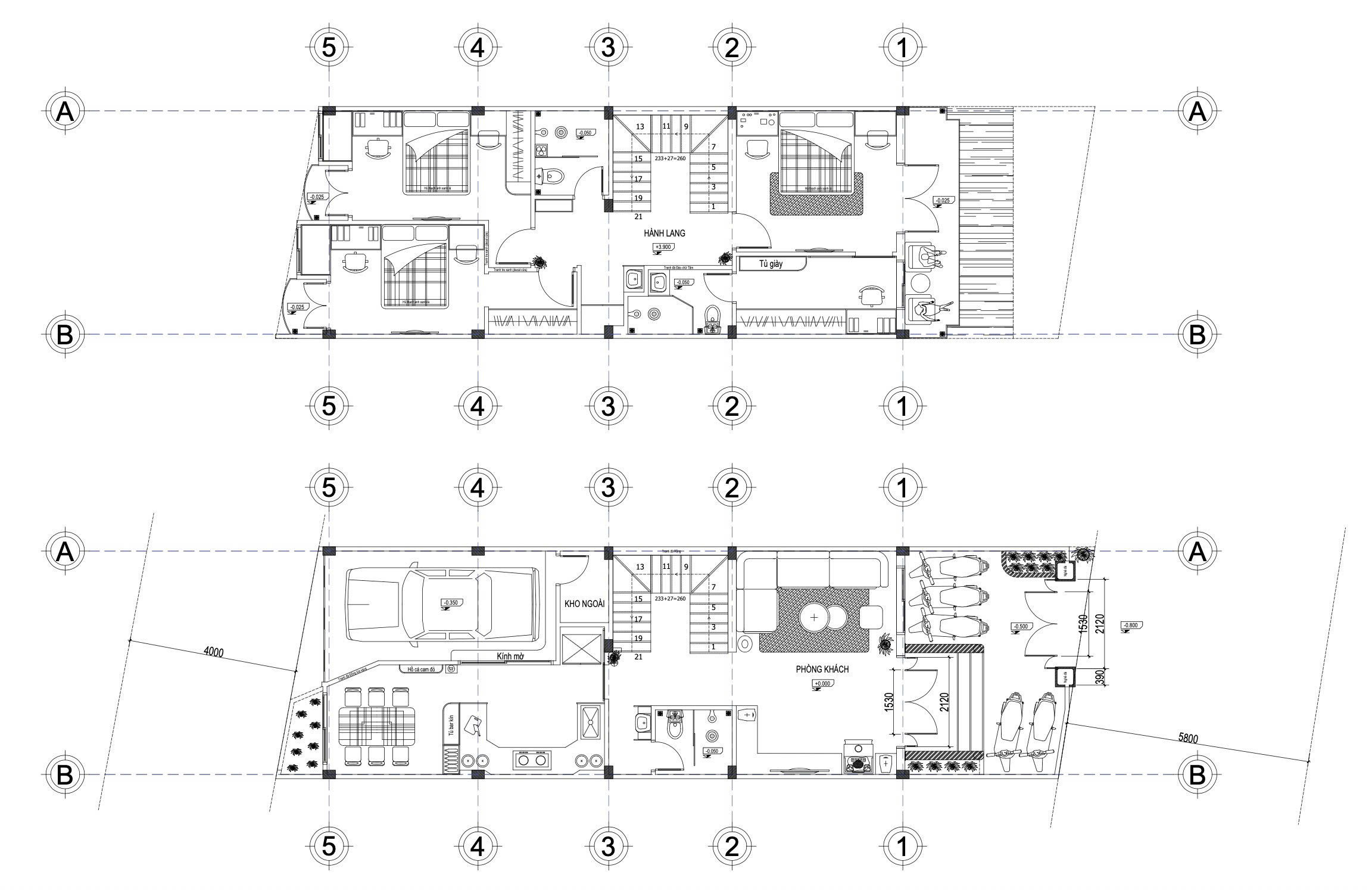
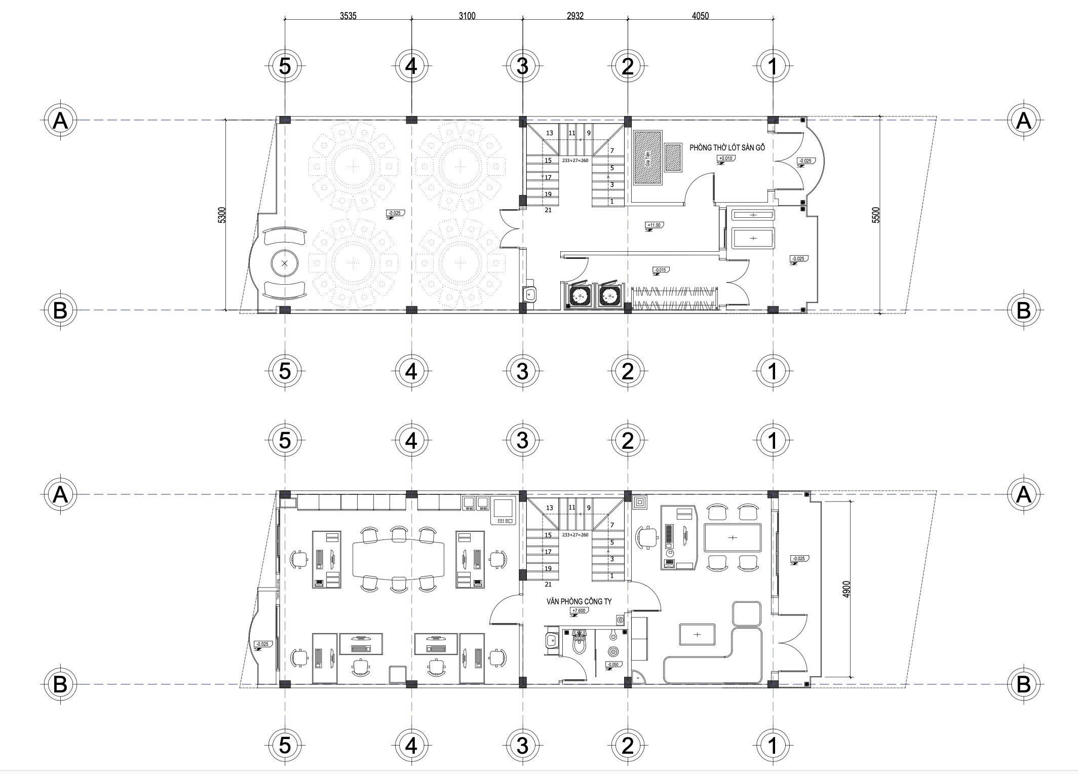
Đính kèm ở đây là mặt bằng bố trí công năng nhà 3 tầng 1 tum trên mảnh đất này có thể tham khảo. Mặt bằng nhà bố trí rất hợp lý về mặt công năng và phong thủy bát trạch của người hợp Đông tứ trạch.

Về sự thuận tiện thì trong bán kính 200m tiếp cận không thiếu thứ gì (Chợ Ga, Trường học, Đường 23/10, Tạp hóa, Cafe, quán nhậu, khách sạn, gara, siêu thị...). Cách bãi tắm Trần Phú Nha Trang ~5km, cách KĐT Vĩnh Điềm Trung ~1km.

Ông cha ta có câu: "LẤY VỢ HIỀN HÒA LÀM NHÀ HƯỚNG NAM" là vậy !

Mọi thông tin, nội dung liên quan tới tin rao này là do người đăng tin đăng tải và chịu trách nhiệm. Guland.vn luôn cố gắng để các thông tin được hữu ích nhất cho quý vị tuy nhiên Guland.vn không đảm bảo và không chịu trách nhiệm về bất kỳ thông tin, nội dung nào liên quan tới tin rao này. Trường hợp phát hiện nội dung tin đăng không chính xác, Quý vị hãy thông báo và cung cấp thông tin cho Ban quản trị Guland.vn theo Hotline Chăm sóc khách hàng để được hỗ trợ nhanh và kịp thời nhất.
Tin đăng tương tự