Căn hộ không chỉ đẹp nhất tòa Intracom 2 - số 33 Cầu Diễn,
mà còn tự tin đứng đầu bảng trong các lựa chọn 3 ngủ cả khu vực Mỹ Đình 2 tầm giá 8 tỷ.
Ưu điểm:
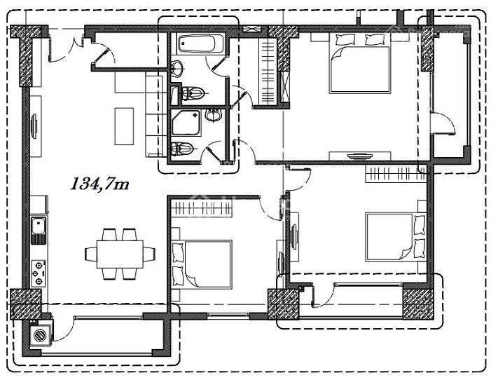
+ Diện tích rộng: 134.7m² thông thủy.
+ Thiết kế tối ưu: thiết kế trục ngang, rất thoáng nhà, phòng nào cũng có cửa sổ rộng.
+ Thông gió, thoáng sáng: Phòng khách có bancon, có logia phơi quần áo riêng.
+ Công năng thoải mái: 3 ngủ rộng, có thiết kế gian thờ, bếp liên thông phòng khách rất hợp lý.
+ Tầng 15, view sông, khu liền kề, hướng Nam chếch Tây mát mẻ.
+ Tiện ích: Giao thông, chợ, TTTM, .... cực kì tiện lợi
Nhược điểm:
+ Ít khuôn viên nội khu.
+ Có 2 thang máy.
+ Tòa nhà bàn giao 2016, gần 10 năm.
Nhà có slot ô tô dưới hầm, sẵn sổ giao dịch ngay.
Liên hệ xem nhà: Tuyển -
Chuyên trục Hàm Nghi +Hồ Tùng Mậu (5-10 tỷ).
Xem thêm
Mọi thông tin, nội dung liên quan tới tin rao này là do người đăng tin đăng tải
và chịu trách nhiệm. Guland.vn luôn cố gắng để các thông tin được hữu ích nhất
cho quý vị tuy nhiên Guland.vn không đảm bảo và không chịu trách nhiệm về bất kỳ
thông tin, nội dung nào liên quan tới tin rao này. Trường hợp phát hiện nội dung
tin đăng không chính xác, Quý vị hãy thông báo và cung cấp thông tin cho Ban
quản trị Guland.vn theo Hotline Chăm sóc khách hàng để được hỗ trợ nhanh và kịp
thời nhất.
Tính năng hoặc nội dung này chỉ dành cho thành viên của GuLand.vn
Bạn vui lòng Đăng ký hoặc Đăng nhập để xem và sử dụng
tính
năng dành riêng cho thành viên, hoặc vui lòng liên hệ chuyên viên tư vấn để được trợ giúp
và
hướng dẫn: