Mua bán Căn hộ chung cư Đường Nguyễn Biểu, Quận Ba Đình, Hà Nội tháng 11/2025 giá rẻ

Có thể bạn quan tâm

1.5 tỷ 45m² 33.33 tr /m²
Mã tin: 1618035
- Diện tích - Gía bán. - Căn 01: 30m² - 35m² gía bán: 800 triệu/căn - 1 tỷ. - Căn 02: 45m² - 55m²: Giá 1,2 - 1,5 tỷ. Chiết khấu cao: 30 - 50tr/căn. Có thang máy, thang bộ. Bảo vệ 24/24. Dự án mini nhưng có vị trí vô cùng đắc địa. - Chung cư mini Đội Cấn nằm trên phố Đội Cấn thuộc quận Ba Đình. - Cách đường chính Đội Cấn 20m, ô tô vào tận cửa. - Gần trường tiểu học Đại Yên, - Gần nhiều tuyến đường trung tâm như Giang Văn Minh. - Gần bảo tàng chiến thắng B52, Gần Lăng chủ tịch Hồ Chí Minh, gần Chùa Một Cột, vị trí vô cùng trung tâm. - Chung cư mini Đội Cấn mua bán ký hợp đồng trực tiếp với chủ đầu tư và được tách sổ hồng đồng sở hữu theo đúng quy định của pháp luật. - Tất cả các căn hộ đều thiết kế thoáng sáng, dễ kê đồ, thiết kế các căn hộ đa dạng từ 1 - 2 phòng ngủ + 1 phòng khách + 1 ban công + 1 vệ sinh. LH: để biết chi tiết(chính chủ không qua trung gian). Xem thêm
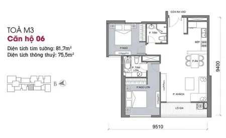
8.9 tỷ 55m² 161.82 tr /m²
Mã tin: 1618034
Chủ hộ có nhu cầu không dùng đến nên cần bán căn căn hộ tòa M1, trục căn 09; đủ đồ đẹp; diện tích 55m²; thông thủy 51m²; hướng Đông Nam, tầng 35 view thoáng. Có đầy đủ nội thất, giá bán 8,9 tỷ. LH: . MTG, QC; cảm ơn đã đọc tin. Xem thêm
14.5 tỷ 80m² 181.25 tr /m²
Mã tin: 1618033
Chủ căn hộ dự án Vin 29 Liễu Giai có nhu cầu bán căn hộ: Tầng cao căn diện tích 80m². Thiết kế phòng khách rộng; bếp dài nhất trong các căn 2 phòng ngủ. Đầy đủ đồ; view hướng nhìn đường Liễu Giai, nhìn được check Hồ Tây. Là căn có PK rộng trong tất cả các căn 2 phòng ngủ. Giá bán: 14.5 tỷ full. LH: . Trân trọng cảm ơn đã đọc tin. Xem thêm
Chuyển chỗ ở mới gia đình em cần bán gấp căn chung cư cao cấp Vinhomes Metropolis Liễu Giai cho ai cần Diện tích 115m Thiết kế 3 ngủ 2 vệ sinh Nội thất đẹp để lại cả đồ điện tử Nhà view hồ cực đẹp Sổ đỏ cất két Gía 21 tỷ bao phí có thương lượng lại cho khách mua Lh em Xem thêm
11 tỷ 80m² 137.5 tr /m²
Mã tin: 1595378
Do nhu cầu chuyển đổi sang căn hộ có diện tích rộng hơn nên em cần nhượng lại căn hộ 3PN tại chung cư Vinhomes Metropolis Liễu Giai cho ai có nhu cầu. Ban công Đông Nam. 80m² - 2PN - nội thất đầy đủ. Sổ đỏ chính chủ. Có slot oto dưới hầm. Giá 11 tỷ có thương lượng sâu với khách thiện chí cọc nhanh. Liên hệ tôi để trực tiếp xem nhà miễn trung gian. Xem thêm
18 tỷ 125m² 144 tr /m²
Mã tin: 1615096
Dự án: Diamond Park Plaza
Chung cư - Diamond Park 16 Láng Hạ 128m².. View hồ thành công. Nhận nhà ở ngay. Đẳng cấp cho khách hàng hưởng thụ. Sổ đỏ sẵn sàng. Toà cao: 19 tầng. 1 sàn 7 căn. - Căn 3 ngủ: Từ 125m². Giá: 18 - 26 tỷ (View Hồ). Ngay cạnh công viên Grandhi. Đối diện rạp chiếu phim Quốc Gia. Trung tâm quân Đống Đa. Sống trong phố - Thuận tiện giao thông. Khu Vip của vip. Phí dịch vụ 15k/m². 4 hầm để xe. Xem thực tế từng căn 1. LH hotline BQLDA: ( xem thực tế ) MIỄN MÔI GIỚI Xem thêm
8.5 tỷ 100m² 85 tr /m²
Mã tin: 1615095
Nhà em bán lại căn hộ chung cư 100 m² 3PN full đẹp gía 8,5 tỷ toà chung cư 67 Văn Cao. LH . - Dự án của Cty Du Lịch Công Đoàn. ngõ 67 Văn Cao, Ba Đình. Đường trước nhà oto tránh, sau mở rộng 20m nối Văn Cao tới khách sạn Khăn Quằng Đỏ. . Mỗi sàn có 2 căn hộ, toà nhà có 6 tầng thang máy.Tầng 1 để xe, có slot để ô tô và nhiều xe máy. Cả tòa chỉ có 10 căn hộ,rất yên tĩnh và riêng tư.Chất lượng hạ tầng rất tốt, an ninh ,an toàn. Diện tích 100m², thiết kế 3PN, 3 thoáng, 2VS, full NT, thang máy, 100% nội thất mới ở luôn.Nhà 3 mặt thoáng sáng, hướng đông nam bắc . -Tặng chỗ để xe ô tô vĩnh viễn tầng 1. Toà nhà gần Hồ Tây, đối diện SVĐ Quần Ngựa, phố cafe Văn Cao. Điểm kết nối 2 tuyến Metro Văn Cao - Hòa Lạc vs Văn Cao - Hồ Gươm. Trước mặt quy hoạch trường học. Phù hợp cho GĐ thích ở phố, có con học ĐH hoặc PTTH khu Ba Đình (Thực Nghiệm, Chu Văn An, RMIT,.. ). Gia đình thích sự yên tĩnh. - Sổ đỏ chính chủ. - Giá chào bán: 8,5 tỷ. Lh: Trần Minh: or . Xem thêm
5.85 tỷ 120m² 48.75 tr /m²
Mã tin: 1613149
VỊ TRÍ ĐẸP - PHỐ VÍP - KHU DÂN TRÍ CAO - OTO ĐỖ CHÂN CẦU THANG - GẦN TRƯỜNG HỌC CÁC CẤP - GẦN TRUNG TÂM THƯƠNG MẠI - GẦN CHỢ -TIỆN ÍCH GẬP TRÀN Nhường lai nhà TT phố Đào Tấn nhà đẹp 2 thoáng nguyên bản 120m T4+T5 giá nhỉnh 5 tỷ có TL +Nhà nằm khu trung tâm quận ngã năm Đào Tấn - Kim Mã  - công viên thủy lệ - Cầu Giấy - Hà Đông - Bưởi - khu dân trí cao +Tổng : 1 phòng khách, 4 phòng ngủ, 2 WC.  khách về sơn lại đẹp long lanh +Sổ đỏ chính chủ, gửi ngân hàng cho mới, nhờ khách hỗ trợ rút sổ LH Tú để xem nhà ngay Xem thêm
Bán căn hộ 2pn 2wc đầy đủ nội thất sạch đẹp, diện tích 75m², view hồ tây, hướng mát. Hiện căn hộ đang cho khách Nhật thuê giá cao. Có thể lấy lại nhà hoặc tiếp tục hợp đồng thuê với khách. Liên hệ : Xem thêm
Yêu cầu tư vấn
Nếu bạn đang có nhu cầu tìm nhà đất khu vực này, hãy để lại yêu cầu. Môi giới Guland ở khu vực này sẽ tìm tuyển chọn và gửi cho bạn sớm nhất!