CHO THUÊ NHÀ XƯỞNG – KCN MỘC BÀI, BẾN CẦU, TÂY NINH – 22.989m²
Thông tin chi tiết
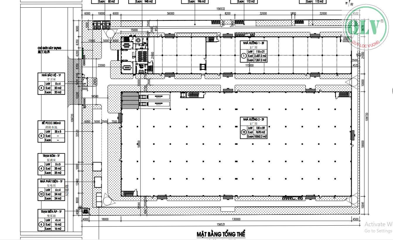
Vị trí: Khu công nghiệp Mộc Bài, Huyện Bến Cầu, Tỉnh Tây Ninh
Tổng diện tích khuôn viên: 17.174m²
Diện tích xây dựng: 22.989m², bao gồm:
Xưởng 1: 7.627m² (3 tầng, diện tích sàn: 2.437m²/tầng)
Xưởng 2: 15.362m² (2 tầng, diện tích sàn: 7.692m²/tầng)
Văn phòng: 945m²
Giá cho thuê: 3,0 USD/m²/tháng
Tiện ích & hạ tầng:
Kết cấu nhà xưởng kiên cố, thiết kế nhiều tầng, tối ưu diện tích sử dụng
Hệ thống điện, nước, PCCC đầy đủ
Đường nội bộ rộng, xe container ra vào thuận tiện
Nằm trong KCN Mộc Bài, vị trí chiến lược gần cửa khẩu, thuận lợi cho xuất nhập khẩu
Phù hợp nhiều ngành nghề sản xuất, kho bãi, logistics
Để biết thêm thông tin chi tiết vui lòng liên hệ:
CTY TNHH MTV QUÝ LỘC VƯỢNG
Hotline: 0931 769 444
Website: https://nhaxuongchinhchu.vn
Mọi thông tin, nội dung liên quan tới tin rao này là do người đăng tin đăng tải
và chịu trách nhiệm. Guland.vn luôn cố gắng để các thông tin được hữu ích nhất
cho quý vị tuy nhiên Guland.vn không đảm bảo và không chịu trách nhiệm về bất kỳ
thông tin, nội dung nào liên quan tới tin rao này. Trường hợp phát hiện nội dung
tin đăng không chính xác, Quý vị hãy thông báo và cung cấp thông tin cho Ban
quản trị Guland.vn theo Hotline Chăm sóc khách hàng để được hỗ trợ nhanh và kịp
thời nhất.
Tính năng hoặc nội dung này chỉ dành cho thành viên của GuLand.vn
Bạn vui lòng Đăng ký hoặc Đăng nhập để xem và sử dụng
tính
năng dành riêng cho thành viên, hoặc vui lòng liên hệ chuyên viên tư vấn để được trợ giúp
và
hướng dẫn: